Konzept

Auf 65 Hektar verbindet der Landschaftspark

  • Aktivität
  • Erholung und
  • Naturschutz

an einem geschichtsträchtigen Ort.

Auf dem Gebiet des ehemaligen Flugfeldes Johannisthal, der Wiege der deutschen Motorfliegerei, liegt das grüne Herz der Stadt für Wirtschaft, Wissenschaft und Medien.

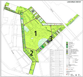
Der Park ist in drei Zonen gegliedert:

1. in der Mitte 26 Hektar Naturschutzgebiet umfasst von zwei Kilometern Promenadenweg

2. in den drei Fugen die Erholungslandschaften und

3. an den Außenkanten die Aktivbänder mit 30 Kammern von durchschnittlich 1.500m².

Download: Plan.pdf (900 kb)

Städteplan

© Copyright 2003-2009 Förderverein Landschaftspark Johannisthal/Adlershof e.V.,
info@foerderverein-landschaftspark.de