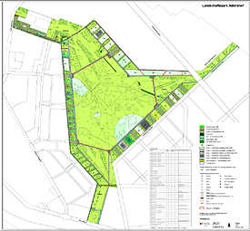
Aktivkammern

Die Aktivkammern sollen unterschiedlichen Nutzungen Raum bieten (siehe Konzept).

Es gibt unter anderem als Aktivkammern

  • „Rollfeld“ für Skater
  • “Blütenmosaik“
  • Kinderspielplätze
  • Bolzplatz (Multifunktions-Sportplatz)
  • BMX-Parkur für Dirt-Biker
  • Kitagarten
  • Himmelsspiegel (Umgestaltung zur Multifunktionsfläche geplant)
  • Phänologischer Garten
     

Ein Natur-Erfahrungsraum wird aktuell hergerichtet, vorausschtlich 2009 eröffnet.

Es ist ein vordringliches Ziel des Fördervereins, sich für die Gestaltung weiterer Kammern - unter Einbeziehung der Nutzer und ihrer Bedürfnisse - einzusetzen und dafür Förder- und Sponsorenmittel zu gewinnen.

Download: Plan.pdf (900 kb)


© Copyright 2003-2009 Förderverein Landschaftspark Johannisthal/Adlershof e.V.,
info@foerderverein-landschaftspark.de

)
Gesamtplan